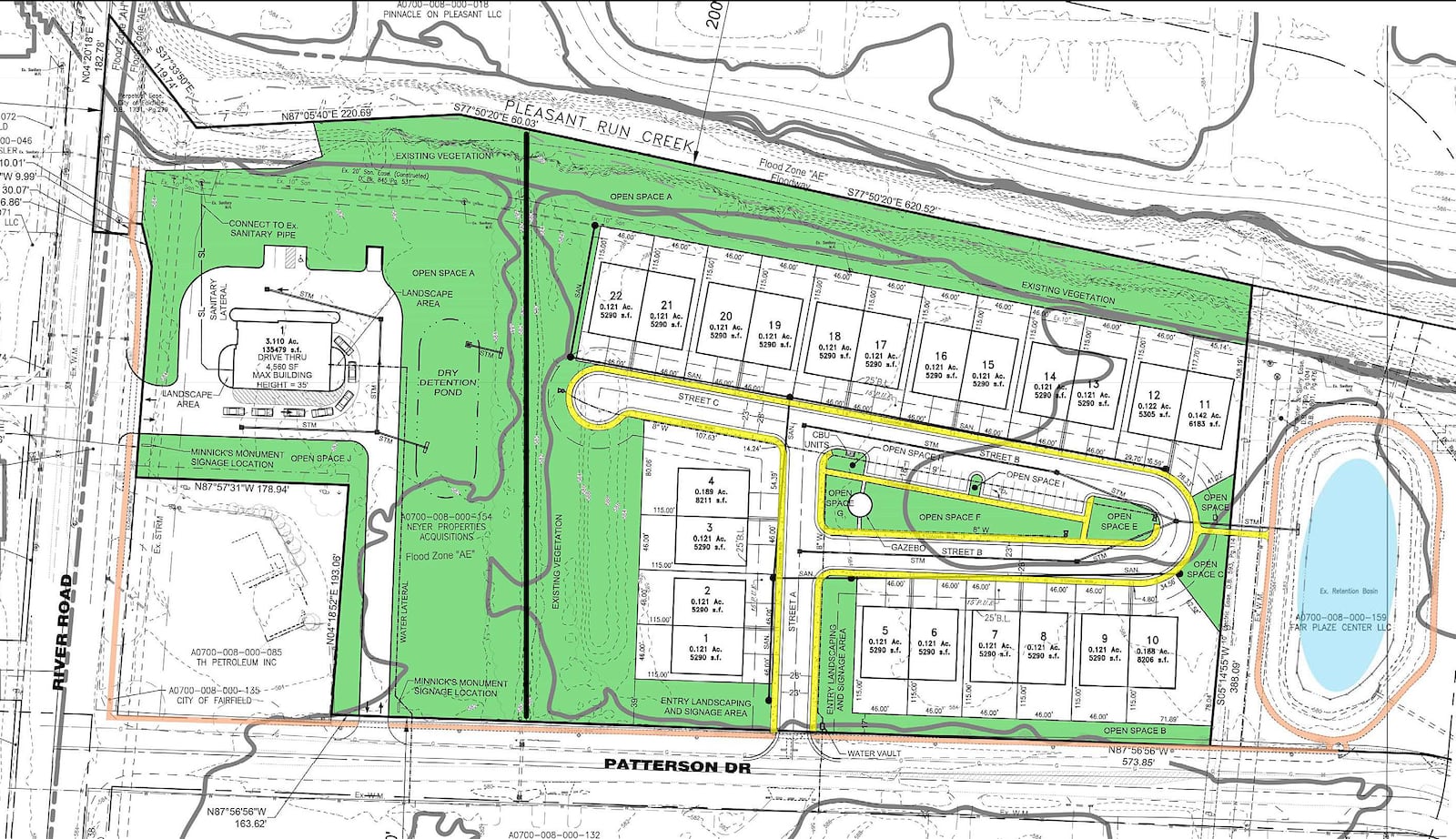
The 12.1-acre site is located at the northeast corner of River Road and Patterson Drive, adjacent to the Marathon gas station.
The 4,560 square-foot drive thru would be built on 3.11 acres with River Road access across from Dorshire Drive in Fairfield.
“We take great pride in our business and the idea of a new build is a lot of fun,’’ said Fred Minnick, co-owner of the drive-throughs.
“(This would) mirror our Princeton Road store. Our new builds are very sharp looking.”
The Minnicks operate 17 drive-through stores in Butler County.
Nearby residents aren’t so happy about the location of the drive-through. During a public hearing they cited traffic concerns along River Road. Others said it wasn’t needed because the nearby Marathon sells the same items.
“Traffic will be a nightmare. I just don’t think it’s good business wise,” said Ryan Steiner.
“The drive through doesn’t make any sense. Everybody already has places to go (for convenience items).”
Credit: Sue Kiesewetter
Credit: Sue Kiesewetter
The paired villas would be owner-occupied on individual lots with a shared, common wall. They would be located on nine acres on the west side of the pond off Patterson Drive.
“This is an ideal location with everything around here … Joyce Park, Waterworks (Park), the Village Green,” Minnick said.
“There’s just so much in this area where duplexes would just be a great fit.”
Before the project can move forward, the Minnicks need approval to change components of the planned unit development for the property, which had been the site of the former Fair Plaza and is owned by Neyer Properties.
Since much of the plaza was demolished in the 2008-2009 timeframe, the Aldi grocery store was built and Mercy Health Fairfield Internal Medicine opened in part of the Fair Plaza structure, said Greg Kathman, Fairfield’s development services director.
The Fairfield Village Apartments — restricted to residents 55 and older — were constructed on the east side of the pond in 2015 as part of the 17-acre PUD, approved in 2010. The single-family homes included in the project were never constructed, Kathman said.
“(There’re) some big challenges. There’s a small stream that bisects the site from north to south,” Kathman said.
“That site is almost completely in the flood plain and flood way. You cannot build anything in the floodway,” Kathman said.
“Most of the rest of the site is in either the 100-year or 500-year flood plain. That makes development more difficult. Another challenge is the creek — you can’t fill it in; you can’t build over it.”
Once a builder partner is identified, utility and Federal Emergency Management Agency issues because of the stream and flood plan would have to be addressed, said Erin Lynn, Fairfield’s planning manager.
The next step is a review of the project by the Fairfield Planning Commission, which will review the project at 6 p.m., Wednesday, in council chambers at the municipal building, 5350 Pleasant Ave.
A second reading is tentatively set for Jan. 12, with a final vote Jan. 26.
About the Author

