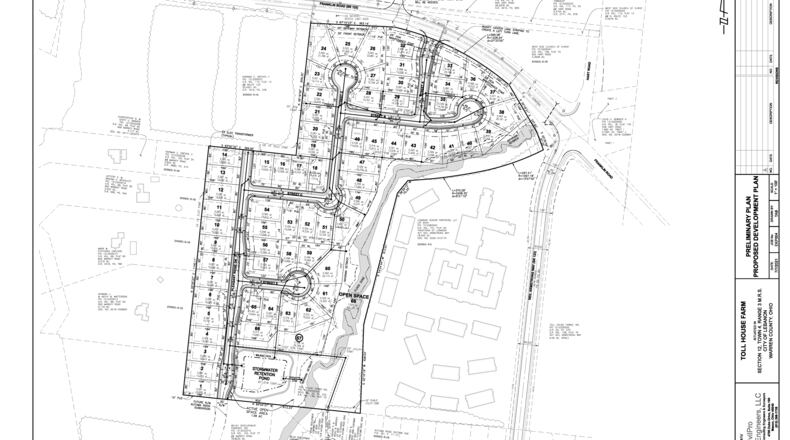
The developer, who is working on the next phase of the Tollhouse Farms subdivision, also claimed the city was refusing to approve development plans and issue construction permits.
The developer claimed the city’s action constitutes a partial regulatory taking because the city is imposing an inflexible granular fill requirement for sewer trenches under roadways. The developer said the city’s interpretation of its own regulations and insistence on the use of granular sewer trench backfill would impose severe economic consequences because the granular fill is significantly more costly.
Campbell Berling Development was also seeking declaratory judgment to force the city to acknowledge its subdivision regulations and accept sewer trench backfill consisting of natural soil as defined in a Ohio Department of Transportation regulation.
Under the settlement agreement, the city agreed to a one-time variance from its requirements to use granular soil as backfill for the sanitary sewer line and permit the use of natural soil; a geotechnical engineer has to be on-site to conduct compaction testing the entire time that any utility or service line is being installed. In addition, the soil has to be compacted to 98%, according to the agreement. The developer also has to extend the warranty period, according to Law Director Mark Yurick.
