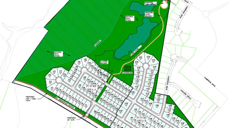
The general residential Planned Unit Development plan submitted for review includes 130 single-family residential lots. Sixty-six of those are 6,760-square foot lots (52 feet wide and 130 feet deep), and 64 are 8,060-square feet (62 feet wide and 130 feet deep).
A multi-use trail is planned for public use along Red Lion-Five Points Road, extending through the development to West Lower Springboro Road, according to plans. This trail would eventually connect with a similar trail to the south in the Clearcreek Reserve West subdivision. The bike lane on West Lower Springboro Road would be extended to the east corporation boundary with development of the Bailey Farm.
Additional private trails are planned within the development, and all streets would have sidewalks as required by city code. The developer’s general plan includes 45.36 acres of open space, or 55% of the subject property land area. This includes a proposal for a common area including a playground and trails around an existing pond. A significant portion of this area is defined as the floodway and floodplain of Clear Creek.
M/I Homes of Cincinnati is the developer of this residential project.
About the Author

